Vea Murguía 38. Viviendas en régimen de cooperativa. Información y Venta: 626 842 176
C/ VEA MURGUÍA ALZADO PATIO SECCIÓN TRANSVERSAL
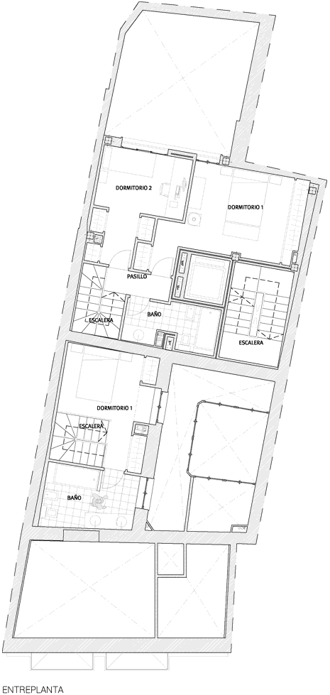
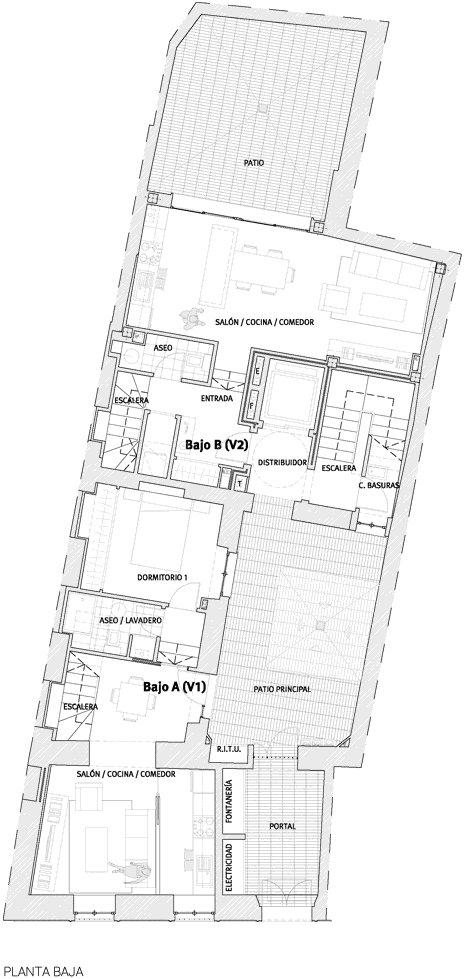
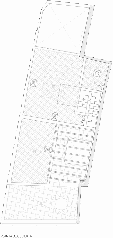
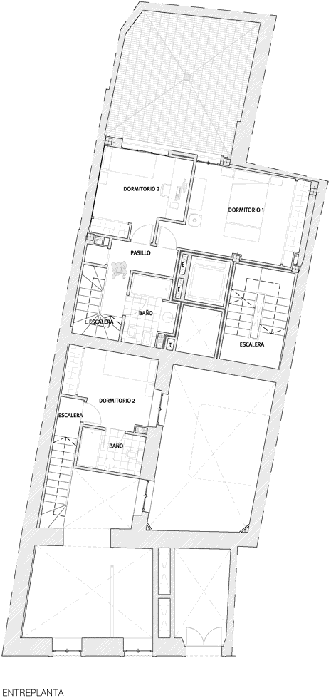
PLANTA CUBIERTA PLANTA ÁTICO PLANTA SEGUNDA ENTREPLANTA PLANTA PRIMERA ENTREPLANTA PLANTA BAJA