Información y Venta: 626 842 176
AVDA. RAMÓN DE CARRANZA PATIO MANZANA
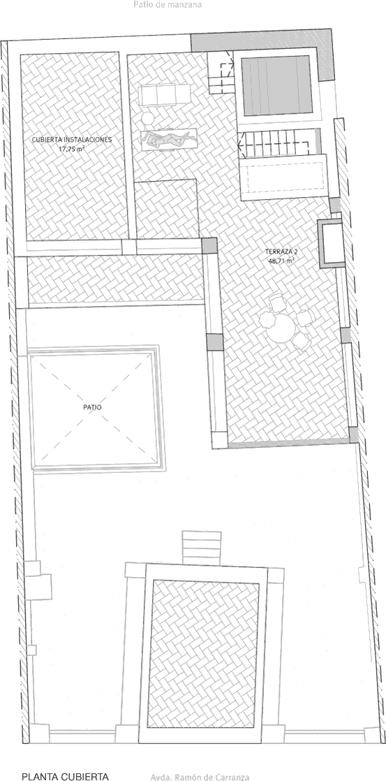
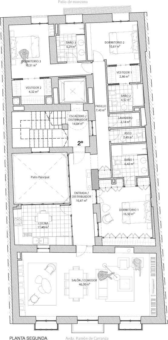
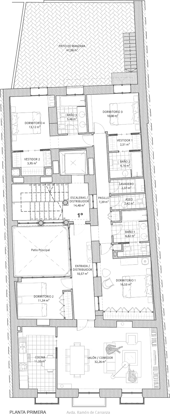
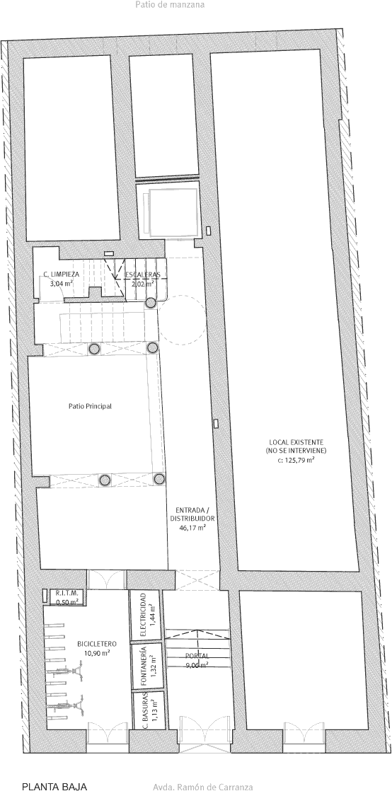
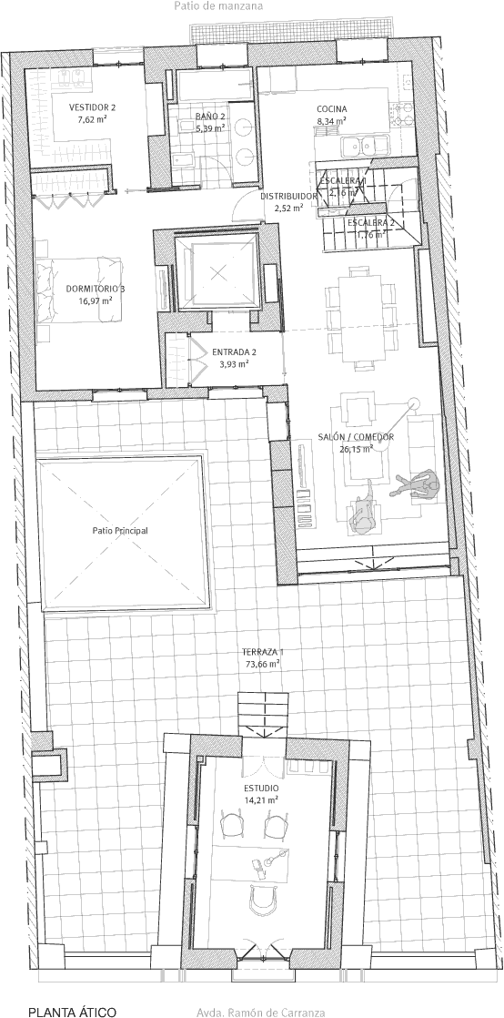
PLANTA CUBIERTA PLANTA ÁTICO PLANTA TERCERA PLANTA SEGUNDA PLANTA PRIMERA PLANTA BAJA PLANTA SÓTANO SECCIÓN TRANSVERSAL
Proyecto y gestión: Gumersindo Fernández Arquitectos S.L.P., Calle Ancha 8, 1º izq. 11001 Cádiz
Gumersindo Fernández Arquitectos S.L.P.