Huerta del Obispo 10, la calidad a precio de coste. Viviendas y garajes en régimen de cooperativa en Cádiz
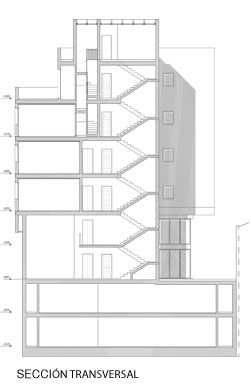
C/ Huerta del Obispo Alzado trasero Sección transversal
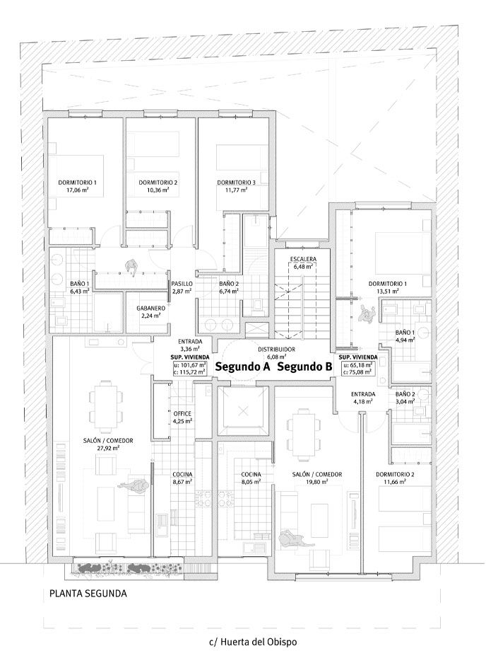
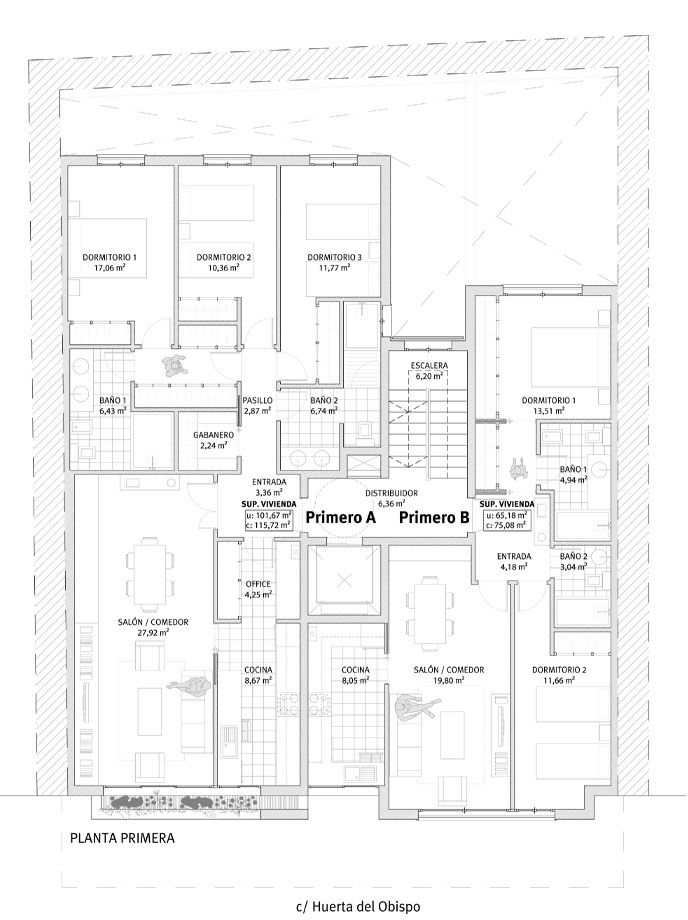
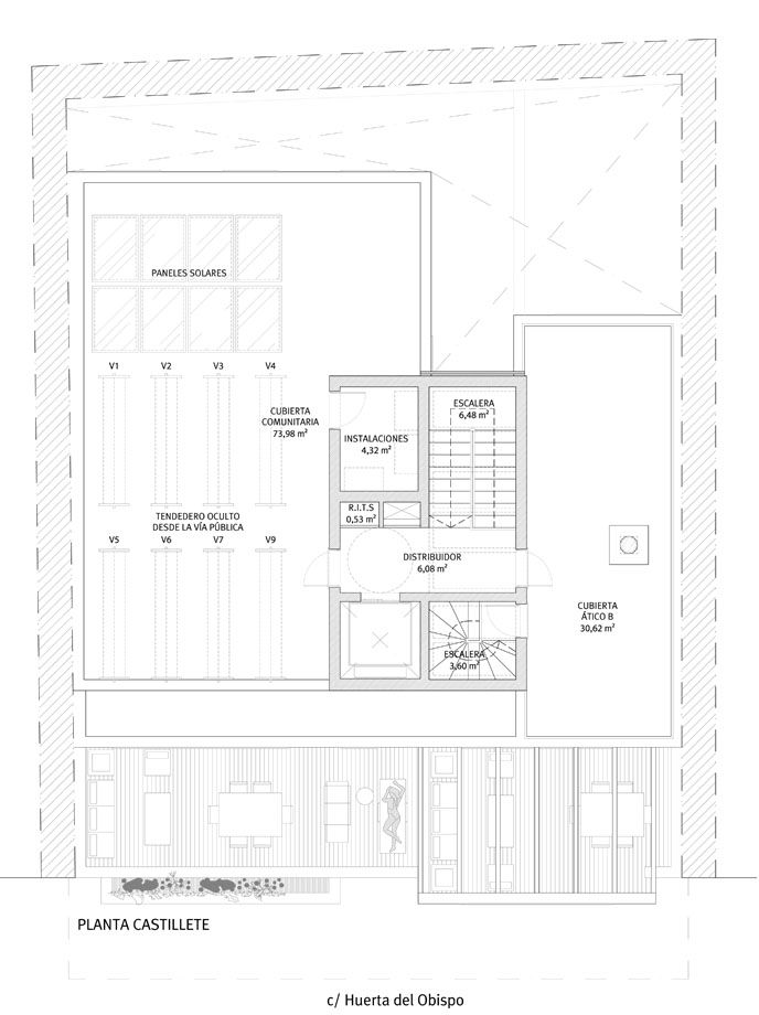
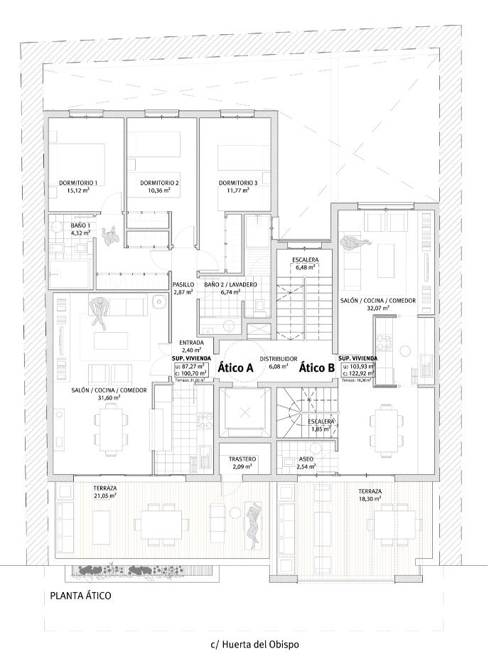
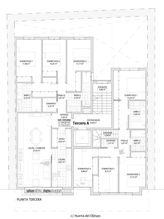
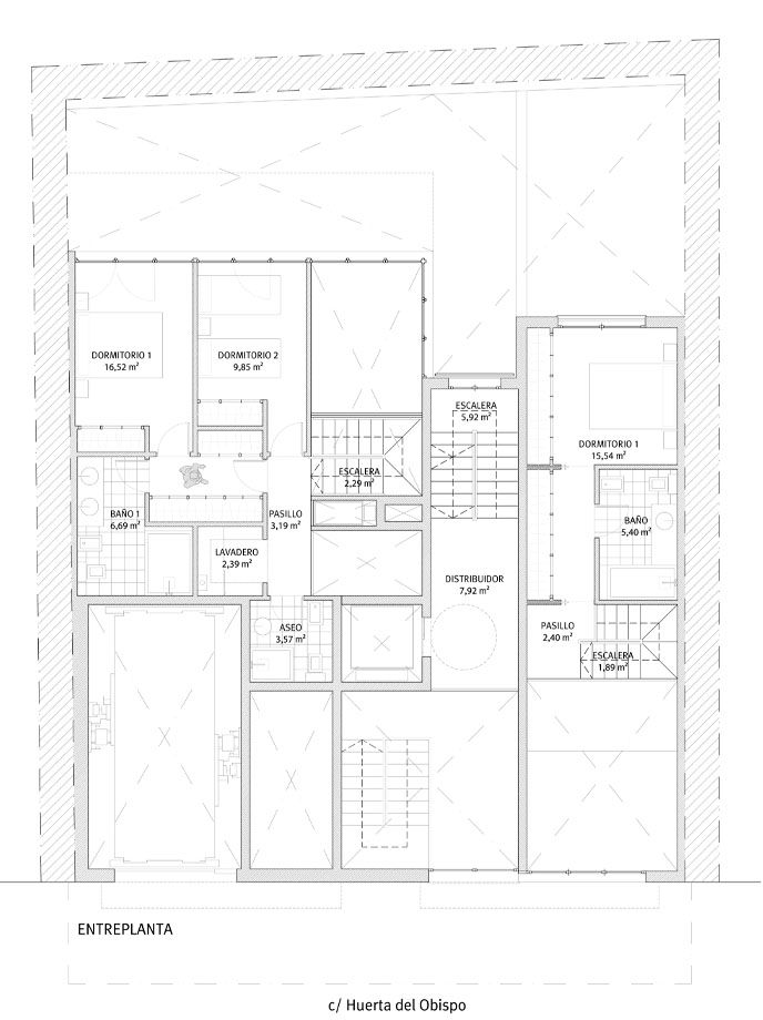
Planta Cubierta Planta Catillete Planta Ático Planta Tercera Planta Segunda Planta Primera Entreplanta Planta Baja Planta Sótano 1 Planta Sótano 2
ContactoProyecto y gestión: Gumersindo Fernández Arquitectos S.L., Calle Ancha 8, 1º Izq. 11001 CádizInformación y venta 626 842 176